Manilva

Te koop Herenhuis Costa Del Sol Manilva € 395.000,-

Ref.no: RSOR5338093
Price: € 395.000,-

1-7980e48d732b6fc85c14b43b94d2aa54.jpg

Te koop Herenhuis Costa Del Sol Manilva € 395.000,-

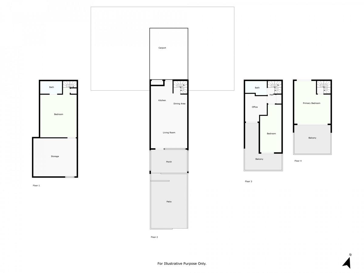
Bedrooms3
Salles de bains2
Living area142m²
Poolyes
Gardenyes
Parkingyes
Instelling: Aan het strand, strand, dicht bij winkels, dicht bij de stad
Orientatie: Zuidoost
Staat: uitstekend, recent gerenoveerd
Zwembad: gemeenschappelijk
Klimaatregeling: airconditioning
Uitzicht: zee, tuin
Caractéristiques : Terrasse couverte, Proche des transports, Terrasse privée, Salle de jeux, Buanderie, Sol en marbre, Double vitrage, Sous-sol
Meubels: volledig gemeubileerd
Tuin: privé
Beveiliging: Gated Complex
Parkeren: privé
Categorie: strand
Ref.no: RSOR5338093
Price: € 395.000,-

Plus d'information ›››
Te koop Herenhuis Costa Del Sol Manilva € 395.000,-

Maison de ville à vendre à Manilva, offrant 3 chambres, 2 salles de bains et une orientation sud-est. Elle bénéficie d'une piscine commune, d'un garage privé (1 place de parking) et d'un jardin privatif. D'une superficie de 142 m² habitables et de 25 m² de terrasse, elle dispose des prestations suivantes : accès direct à la plage, proximité des commerces et des transports, climatisation, entièrement meublée, cuisine équipée, buanderie, sols en marbre, sous-sol, entrée sécurisée, double vitrage, WC invités, terrasse privative, séjour, terrasse couverte, résidence sécurisée, vue sur le jardin, accès à la plage, à proximité d'une aire de jeux pour enfants, de la mer et d'un golf, terrasse découverte, salle de jeux, portes vitrées, balcon, excellent état, récemment rénovée, proche des commerces et du centre-ville, animaux acceptés, vue mer partielle, accès direct à la mer et à proximité des restaurants.

Alternatives

BOHACP1387_4419_V1_666E.jpg

Te koop Herenhuis Costa Del Sol Mijas € 445.000,-

Price € 445.000,-
Plus d'information
1-7980e48d732b6fc85c14b43b94d2aa54.jpg

Te koop Herenhuis Costa Del Sol Fuengirola € 395.000,-

Price € 395.000,-
Plus d'information
1-7980e48d732b6fc85c14b43b94d2aa54.jpg

Te koop Herenhuis Costa Del Sol Casares Playa € 350.000,-

Price € 350.000,-
Plus d'information
1-7980e48d732b6fc85c14b43b94d2aa54.jpg

Te koop Herenhuis Costa Del Sol Marbella € 367.000,-

Price € 367.000,-
Plus d'information
Disclaimer | Links
Casadelmar %lng_cookie_notice% %lng_close%
x