Estepona

Te koop Grond Costa Del Sol Estepona € 350.000,-

Ref.no: RSOR5338273
Price: € 350.000,-

1-7980e48d732b6fc85c14b43b94d2aa54.jpg

Te koop Grond Costa Del Sol Estepona € 350.000,-

Superficie du terrain880m²
Poolno
Gardenyes
Parkingno
Instelling: dicht bij de haven, dicht bij winkels, dicht bij de zee, dicht bij de stad, dicht bij scholen
Orientatie: Zuid-West
Uitzicht: zee, bergen, golf, land, panoramisch
Ref.no: RSOR5338273
Price: € 350.000,-

Plus d'information ›››
Te koop Grond Costa Del Sol Estepona € 350.000,-

Une propriété emblématique offrant le meilleur de la vie sur la Costa del Sol.

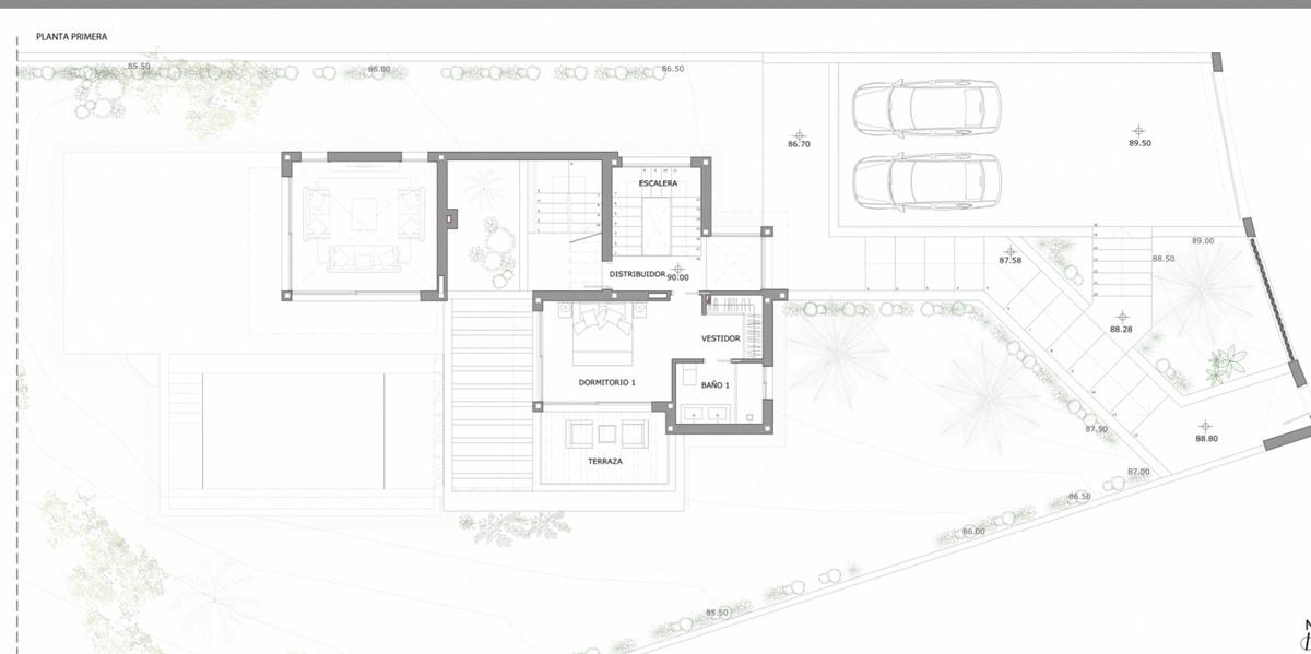
Terrain constructible de premier choix de 880 m² avec projet et structure à Estepona, offrant une vue sur la mer et le golf – Idéal pour un projet de construction sur mesure ou un investissement.
Ce terrain de 880,33 m² situé dans un quartier résidentiel en pleine expansion d'Estepona offre une excellente opportunité de construire une villa privée à quelques minutes seulement de la plage, des terrains de golf et de toutes les commodités locales.

La propriété comprend des fondations existantes, offrant ainsi au futur propriétaire deux options claires :
Option 1 : Construire une villa sur la base des fondations structurelles existantes (projet d'exécution disponible).
Option 2 : Supprimer les fondations actuelles et élaborer un tout nouveau design à partir de zéro.

Dans les deux cas, l'acheteur devra demander un permis de construire auprès de la mairie.
Situé dans un quartier calme et bien desservi d'Estepona, ce terrain est idéal pour les particuliers, les promoteurs ou les investisseurs souhaitant construire une villa moderne avec piscine, jardin et espaces de vie ouverts. Bénéficiant d'un bon ensoleillement et d'un accès facile à Estepona, Marbella, Puerto Banús et l'aéroport de Malaga, son emplacement offre un excellent potentiel de valorisation à long terme et un cadre de vie exceptionnel.

NOTRE AGENCE REDÉFINIT L'EXPÉRIENCE IMMOBILIÈRE GRÂCE À SON ENGAGEMENT À OFFRIR UN SERVICE FLUIDE ET CENTRÉ SUR LE CLIENT.
Notre mission va bien au-delà des transactions immobilières : nous offrons un parcours complet et de qualité supérieure vers l'accession à la propriété, conçu pour rendre chaque étape aussi fluide et sereine que possible.

Grâce à notre service spécialisé d'assistance visa, nous simplifions votre installation internationale en prenant en charge toutes les démarches juridiques et administratives pour vous et votre famille. Pour faciliter votre arrivée en Espagne, nous vous offrons également une assistance gratuite pour l'obtention de votre NIE, vous permettant ainsi de surmonter les obstacles bureaucratiques et de gagner un temps précieux.
Nous savons que chaque investissement compte. C'est pourquoi notre équipe interne de courtiers hypothécaires travaille sans relâche pour vous obtenir les conditions les plus avantageuses, adaptées à votre profil financier unique, rendant ainsi vos rêves immobiliers plus accessibles que jamais.

Notre approche est claire et directe : vous traitez exclusivement avec nous, sans intermédiaires inutiles. Ceci garantit un processus d’achat transparent et simplifié. Nous vous offrons également des conseils juridiques gratuits pour protéger votre investissement et garantir la défense de vos intérêts tout au long de la transaction.
Vous bénéficiez d'un accès exclusif à des biens d'exception, proposés par nos agents dédiés qui possèdent une connaissance approfondie du marché et un accès privilégié aux opportunités hors marché. Il ne s'agit pas simplement de trouver un bien, mais de créer une expérience personnalisée qui corresponde à votre style de vie et à votre vision à long terme.

Nous ne nous contentons pas de vendre des propriétés — nous vous aidons à bâtir votre avenir, avec soin, clarté et confiance.
Caractéristiques principales :

Superficie du terrain : 880.33 m²
Idéal pour la construction d'une villa avec piscine
Cadre résidentiel paisible avec vue sur la mer et le golf
À proximité des terrains de golf, des plages et des services
Excellent potentiel d'investissement

Ne ratez pas cette occasion de construire la maison de vos rêves dans l'un des plus beaux endroits côtiers du sud de l'Espagne.
LAISSEZ-NOUS VOUS ÉMEUTIER !

Alternatives

1-7980e48d732b6fc85c14b43b94d2aa54.jpg

Te koop Grond Costa Del Sol Marbella € 400.000,-

Price € 400.000,-
Plus d'information
1-7980e48d732b6fc85c14b43b94d2aa54.jpg

Te koop Grond Costa Del Sol Estepona € 350.000,-

Price € 350.000,-
Plus d'information
1-7980e48d732b6fc85c14b43b94d2aa54.jpg

Te koop Residential Plot Costa Del Sol Marbella € 399.000,-

Price € 399.000,-
Plus d'information
1-7980e48d732b6fc85c14b43b94d2aa54.jpg

Te koop Grond Costa Del Sol Alora € 302.000,-

Price € 302.000,-
Plus d'information
Disclaimer | Links
Casadelmar %lng_cookie_notice% %lng_close%
x