Cerros Del Aguila

Te koop Bovenwoning Costa Del Sol Cerros Del Aguila € 349.000,-

Ref.no: RSOR5274112
Price: € 349.000,-

1-7980e48d732b6fc85c14b43b94d2aa54.jpg

Te koop Bovenwoning Costa Del Sol Cerros Del Aguila € 349.000,-

Bedrooms2
Salles de bains2
Living area61m²
Poolyes
Gardenyes
Parkingyes
Built year2002
Instelling: Dicht bij golf, verstedelijking
Orientatie: Noord, Oost, Zuid, West
Staat: goed
Zwembad: gemeenschappelijk
Klimaatregeling: airconditioning, warme airconditioning, koude airconditioning
Uitzicht: zee, bergen, land, panoramisch, tuin
Équipements : Terrasse couverte, Ascenseur, Placards intégrés, Terrasse privée, Solarium, Wi-Fi, Sol en marbre
Meubels: volledig gemeubileerd
Keuken: volledig ingericht
Tuin: Gemeenschappelijk
Beveiliging: Gated Complex
Parkeren: privé
Categorie: Vakantiehuizen, Investering, Wederverkoop
Ref.no: RSOR5274112
Price: € 349.000,-

Plus d'information ›››
Te koop Bovenwoning Costa Del Sol Cerros Del Aguila € 349.000,-

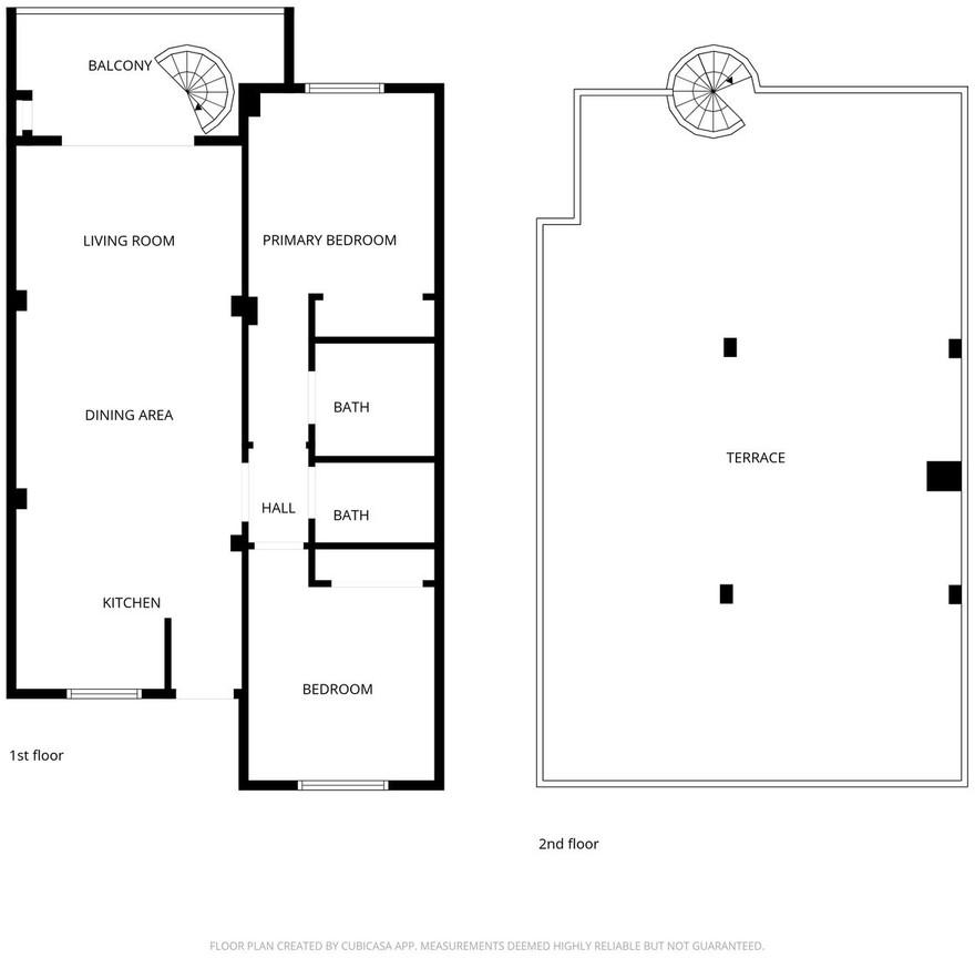
Dernier étage avec un très grand solarium/terrasse sur le toit !

Bel appartement lumineux à distance de marche des restaurants et du supermarché local.

Ce magnifique appartement a fait l'objet d'une importante rénovation il y a seulement un an et demi, avec une toute nouvelle cuisine ouverte et un chauffage au sol dans les deux salles de bains.

Depuis le salon, on accède à une terrasse de belle taille exposée plein sud. En empruntant l'escalier extérieur en colimaçon, on découvre un autre solarium, immense lui aussi, d'où l'on peut admirer une vue imprenable sur la mer, les montagnes majestueuses et la verdure environnante de Cerros del Aguila.
Lors de la rénovation, le propriétaire actuel a également installé une douche extérieure sur la terrasse supérieure, ce qui permet de se rafraîchir pendant les chaudes journées d'été.

Si vous aimez le sport, le club de padel le plus proche est accessible à pied. Il en va de même pour le célèbre golf de Cerrado ! De plus, cet investissement exceptionnel se situe à deux pas du nouveau grand parc que la municipalité de Mijas est en train d’aménager. Il deviendra le plus grand parc jamais construit sur la Costa del Sol !

De plus, cette superbe maison comprend une place de parking privée située dans une résidence sécurisée. Entièrement meublée, elle est même équipée d'un canapé-lit, permettant d'accueillir jusqu'à 6 personnes. Il ne vous reste plus qu'à faire vos valises, à vous installer dans votre maison de vacances idéale et à profiter de la douceur de vivre sur la Costa del Sol !

Il convient de préciser que les propriétaires actuels ont obtenu la licence touristique pour les locations de courte durée et que la copropriété n'a pas voté contre. Toutefois, comme dans toutes les copropriétés, les nouveaux propriétaires devront consulter l'administration s'ils souhaitent conserver cette licence.

Licence touristique :
Ce superbe appartement possède déjà une licence touristique, et l'administration accepte la poursuite de l'activité pour les nouveaux propriétaires !

La piscine commune est ouverte toute l'année.

Alternatives

BOHAAP4855_26481_V1_FF15.jpg

Te koop Appartement Costa Del Sol Mijas Costa € 330.000,-

Price € 330.000,-
Plus d'information
BOHACP1375_4327_V1_8BA3.jpg

Te koop Appartement Costa Del Sol Mijas € 360.000,-

Price € 360.000,-
Plus d'information
BOHACP1199_2818_V1_833E.jpg

Te koop Appartement Costa Del Sol Mijas € 370.000,-

Price € 370.000,-
Plus d'information
BOHACP1441_4913_V1_E612.jpg

Te koop Appartement Costa Del Sol Mijas € 335.000,-

Price € 335.000,-
Plus d'information
Disclaimer | Links
Casadelmar %lng_cookie_notice% %lng_close%
x