Riogordo

Te koop Herenhuis Costa Del Sol Riogordo € 295.000,-

Ref.no: RSOR5298295
Price: € 295.000,-

1-7980e48d732b6fc85c14b43b94d2aa54.jpg

Te koop Herenhuis Costa Del Sol Riogordo € 295.000,-

Bedrooms9
Salles de bains5
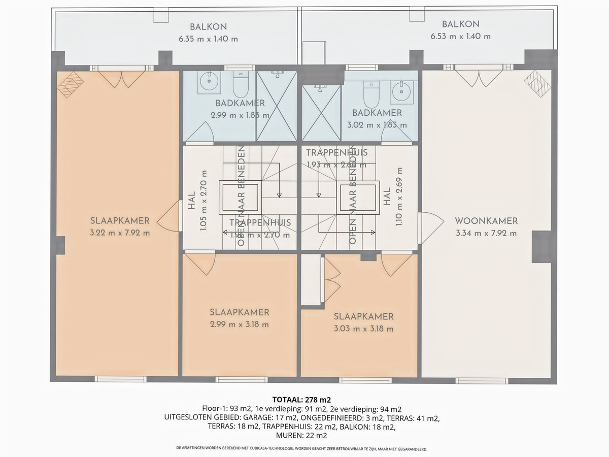
Living area381m²
Poolno
Gardenyes
Parkingyes
Built year2005
Omgeving: Dorp, Bergpueblo, Dicht bij stad, Dicht bij scholen
Orientatie: Zuid-West
Staat: goed
Pool: ruimte voor zwembad
Klimaatregeling: airconditioning
Weergaven: Binnenplaats, Stedelijk
Caractéristiques : Terrasse privée, Wi-Fi, local de rangement, salle de bains attenante, à proximité de l'église
Meubilair: niet gemeubileerd
Keuken: gedeeltelijk ingericht
Tuin: privé
Parkeren: Garage, Straat
Hulpprogramma's: elektriciteit, drinkwater
Categorie: Koopje, Investering, Wederverkoop
Ref.no: RSOR5298295
Price: € 295.000,-

Plus d'information ›››
Te koop Herenhuis Costa Del Sol Riogordo € 295.000,-

Nous sommes heureux de vous présenter cette opportunité d'investissement unique au cœur de Riogordo (Málaga) : une spacieuse maison de village d'une surface habitable totale de 381 m², répartie sur trois niveaux, sur un terrain résidentiel urbain de 323 m². Construite en 2005 et enregistrée comme une seule et même propriété sans division horizontale, elle offre une flexibilité exceptionnelle pour un réaménagement ou une reconfiguration. En excellent état et proposée à un prix attractif compte tenu de sa taille et de son emplacement, elle est idéale pour une rénovation complète afin d'en révéler tout le potentiel. Plusieurs options d'aménagement sont envisageables : conserver la configuration actuelle en deux grands logements avec espaces extérieurs privatifs, transformer le rez-de-chaussée en local commercial, bureau ou espace de coworking pour générer des revenus locatifs supplémentaires, ou encore créer deux appartements duplex modernes avec terrasses privatives, parfaits pour la location longue durée ou saisonnière. Le premier étage permet également la création de vastes terrasses donnant sur un jardin commun à l'arrière, offrant une véritable oasis de verdure au cœur du village. Idéalement situé à seulement 35 minutes de Malaga et à 30 minutes de la côte, à Torre del Mar, Riogordo séduit de plus en plus face à la demande croissante de logements plus abordables à proximité de la ville. Les photos présentent des propositions d'aménagement et des concepts architecturaux, tandis que la vidéo d'accompagnement offre une visite virtuelle 3D de la structure actuelle. Tous les documents légaux et cadastraux sont en règle, garantissant ainsi la clarté et la facilité des développements futurs. Pour plus d'informations, des plans détaillés ou pour discuter d'idées de rénovation et du potentiel d'investissement, n'hésitez pas à nous contacter.

Alternatives

1-7980e48d732b6fc85c14b43b94d2aa54.jpg

Te koop Herenhuis Costa Del Sol Manilva € 335.000,-

Price € 335.000,-
Plus d'information
1-7980e48d732b6fc85c14b43b94d2aa54.jpg

Te koop Herenhuis Costa Del Sol Doña Julia € 327.000,-

Price € 327.000,-
Plus d'information
1-7980e48d732b6fc85c14b43b94d2aa54.jpg

Te koop Herenhuis Costa Del Sol Benalmadena Costa € 259.000,-

Price € 259.000,-
Plus d'information
1-7980e48d732b6fc85c14b43b94d2aa54.jpg

Te koop Herenhuis Costa Del Sol Doña Julia € 321.000,-

Price € 321.000,-
Plus d'information
Disclaimer | Links
Casadelmar %lng_cookie_notice% %lng_close%
x