Benajarafe

Te koop Herenhuis Costa Del Sol Benajarafe € 360.000,-

Ref.no: RSOR5004820
Price: € 360.000,-

1-7980e48d732b6fc85c14b43b94d2aa54.jpg

Te koop Herenhuis Costa Del Sol Benajarafe € 360.000,-

Bedrooms3
Salles de bains2
Superficie du terrain104m²
Poolyes
Gardenno
Parkingno
Built year2010
Staat: goed
Zwembad: gemeenschappelijk
Klimaatregeling: airconditioning, open haard
Kenmerken: Overdekt terras, Privéterras, Houten vloer
Meubilair: niet gemeubileerd
Ref.no: RSOR5004820
Price: € 360.000,-

Plus d'information ›››
Te koop Herenhuis Costa Del Sol Benajarafe € 360.000,-

Si vous recherchez une maison en bord de mer, cette villa à Benajarafe est une option magnifique !

Située dans un quartier résidentiel avec piscine, à quelques minutes à pied de la plage, de sa promenade et de son sentier côtier, c'est un endroit idéal pour marcher, courir ou faire du vélo, en profitant de la brise marine, du paysage naturel et en admirant les levers et couchers de soleil.

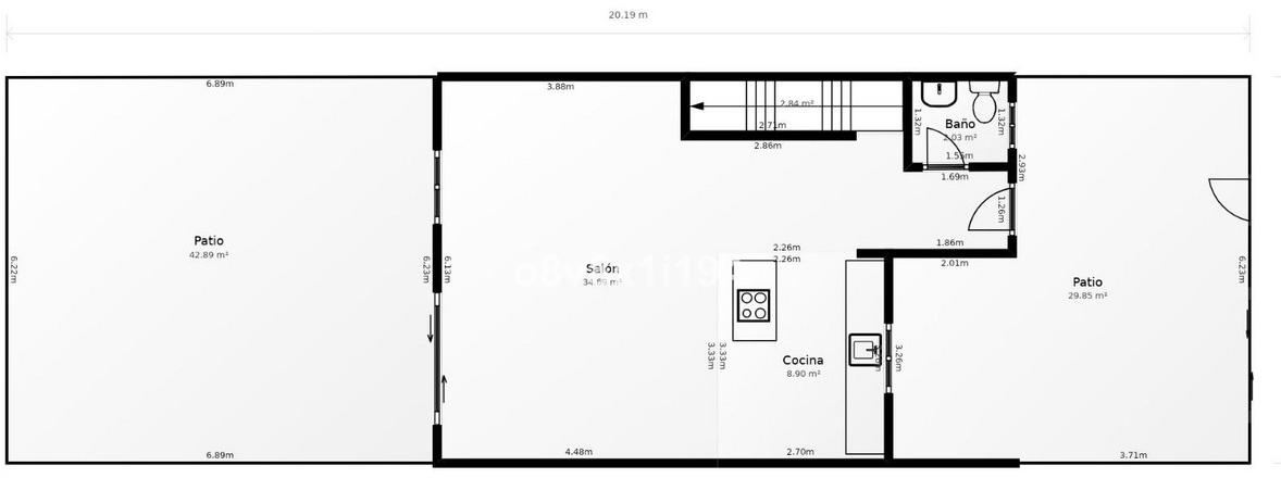
Il s'agit d'une belle villa mitoyenne de deux étages avec une place de parking dans la cour avant et une belle terrasse à l'arrière.

L'agencement du rez-de-chaussée est très pratique et fonctionnel. La cuisine ouverte sur le séjour optimise l'espace et favorise les échanges, que ce soit pour cuisiner ou discuter. La cheminée apporte une touche chaleureuse et conviviale, idéale pour les soirées d'hiver. La terrasse est un atout majeur, permettant de profiter du plein air toute l'année, pour un petit-déjeuner ensoleillé, des barbecues ou simplement pour se détendre. Enfin, la présence d'une salle de bain au rez-de-chaussée est très pratique au quotidien.

Le premier étage, avec trois chambres dotées de placards intégrés et deux salles de bains, dont une attenante à la chambre principale, est idéal pour une famille ou pour ceux qui ont besoin de plus d'espace.

Vous aurez tout à portée de main : commerces de toutes sortes, restaurants, centre de santé, pharmacies, bars de plage, écoles publiques et privées, dont l’école privée Novaschool Añoreta. Le golf d’Añoreta, les clubs de padel et autres centres sportifs, ainsi que le centre commercial El Ingenio, proposant une grande variété de boutiques, restaurants et divertissements, sont tout proches.

Grâce à son accès facile à l'autoroute méditerranéenne, il se trouve à moins d'une demi-heure de la ville de Málaga et à environ 35 minutes de l'aéroport international de Málaga et de la Costa del Sol.

Un lieu idéal où confort et emplacement se conjuguent pour vous offrir une qualité de vie optimale. Ne manquez pas l'occasion de faire de cette villa votre nouvelle demeure !

Alternatives

1-7980e48d732b6fc85c14b43b94d2aa54.jpg

Te koop Herenhuis Costa Del Sol Las Lagunas € 399.000,-

Price € 399.000,-
Plus d'information
1-7980e48d732b6fc85c14b43b94d2aa54.jpg

Te koop Herenhuis Costa Del Sol Campo Mijas € 380.000,-

Price € 380.000,-
Plus d'information
1-7980e48d732b6fc85c14b43b94d2aa54.jpg

Te koop Herenhuis Costa Del Sol Torreblanca € 410.000,-

Price € 410.000,-
Plus d'information
1-7980e48d732b6fc85c14b43b94d2aa54.jpg

Te koop Herenhuis Costa Del Sol Torrequebrada € 335.000,-

Price € 335.000,-
Plus d'information
Disclaimer | Links
Casadelmar %lng_cookie_notice% %lng_close%
x